2023/06/12
家づくりのポイント
平屋のメリットとデメリットを間取りを踏まえて徹底検証
こんにちは。浜松市の工務店、ほっと住まいるの栗田です。








昔は『お爺ちゃんお婆ちゃんの家』というイメージが強かった平屋のお家ですが、最近では若い方にも人気があり、弊社でも約12%の方が平屋のお家を建てられています(2023年6月現在)。
12%というと僅かな数値と捉えがちですが、実際の棟数としては19棟も施工しているので決して少ない数ではありません。
そんな平屋のお家・・・どんな点が人気なのか、人気があっても実際に2階建て住宅の方が圧倒的に数が多いのは何故か、といった点を考察してみたいと思います。
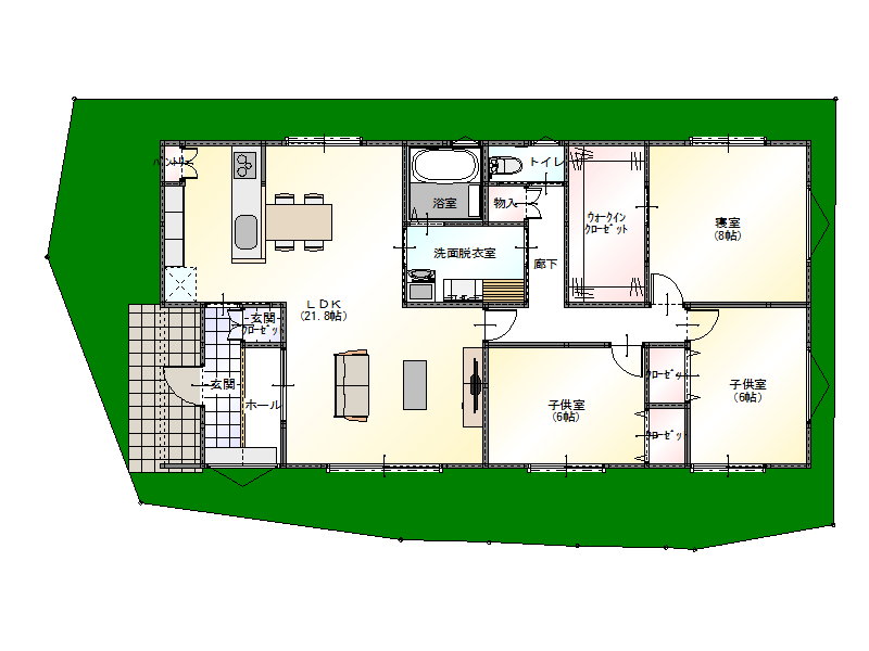
31坪・3LDKの間取りを例に
検証に当たり、まず31坪・3LDKの間取りを2階建てのパターンと平屋のパターンでそれぞれ作成してみました。
比べ易いように、玄関・寝室・子供室・収納・浴室・トイレはどちらの間取りも同じ広さに揃えてあります(図面上の薄紫色の部分)。

この時に見えてくることとして、平屋のプランの方がLDKや洗面脱衣室の広さに余裕があることに気付きます。
2階建ての間取りの場合はどうしても階段のスペースが必要ですから、同じ坪数に揃えようとすると、LDKは平屋のときほどの広さは確保できません。
反対に、同じ坪数でLDKの広さを平屋と同程度にしようとすると、今度は寝室や子供室を狭くする必要が出てきます。
LDKも広くしたいし、寝室や子供室も狭くしたくないということになると、坪数そのものを増やさなければならず、それは建物金額アップの要因となります。
・・・ということを考えると、同じ坪数のお家であれば平屋のお家は2階建てに比べて広々とした間取りが確保できそうな気がしてきますね。
ただ・・・これは大きなデメリットといいますか・・・同じ坪数であれば2階建てのお家に比べて割高になるのが平屋の特徴です。
平屋が割高な理由
上記の間取りを比べてみても、部屋の数は同じ、窓の数だってそう変わらない、階段だって無いのに何がそんなに高くなっちゃうの!?って疑問が浮かぶかと思いますが、下の図にその答えがあります。


赤線で囲んだ部分はそれぞれの間取りで必要となってくる基礎工事、屋根工事の範囲となります。
総2階の間取りと比べると、基礎も屋根も単純に2倍も必要になってくるんですよね。
この平屋の割高感っていうのが2階建て住宅が多い要因のひとつであることは疑いようのない事実ではないかと思います。
そして、2階建て住宅が多いもうひとつの理由は敷地との兼ね合いです。
実際の土地に落とし込んでみると・・・
弊社では掛川市仁藤に自社物件として約50坪の土地を販売用に所有しているのですが、試しに作成した間取りをその土地に配置してみます。


・・・お判りですよね!?
実際に住むうえでは駐車スペースも確保しておかなければなりませんし、建ぺい率といった法規制なども遵守しなければなりません。
この辺りの分譲地といったら1区画60坪前後の土地が多いので、そういった土地を購入した上での新築ということになると、やはり自ずと2階建て住宅の割合が増えてきます。
その反面・・・・・・


たとえば100坪もあるような広い土地に新築するような場合は、平屋っていうのも十分検討の余地があるのではないかと。
広い土地に平屋を建てた場合、2階建て住宅に比べると外構費用を抑えることにもつながりますから、メリットは大きいと思いますよ。
平屋のメリット・デメリットとは
前述の内容に加え、考えられる点をまとめてみるとこんな感じでしょうか。
≪平屋のメリット≫
○階段が無い分だけLDKなど間取りの他の部分に余裕が生まれる。
○LDKの上に2階の間取りが乗らないことで、開放感のある勾配天井とすることが出来る。
○すべての部屋が同じ階にあって家事動線などをまとめやすい。
○階段を使わないことで老後の生活が楽になる。
○外構費用を抑えらえる。
≪平屋のデメリット≫
○基礎・屋根が大きい分、2階建てに比べて割高となる。
○広い敷地を必要としがちになる。
○浸水危険地域の場合、一時避難に使用する階層が無い。
ここに挙げたデメリットの他にも良くないことはあるのかもしれません。
そういったものを考えていけばきりがありませんが、それでも平屋には多くの魅力がありますので、それを感じることが出来れば、資金や建設地と相談しながら検討のひとつとするのも悪くないと思います。
.png)















