2023/07/01
家づくりのポイント
洗濯物室内干しする生活スタイル増加中

こんにちは。浜松と掛川の工務店、ほっと住まいる㈱です。

お役立ちアイテム


例年と比較して雨が多いのか? 梅雨時期の今。
雨が続くと、それだけでも憂鬱という方も多いのでは?
特にお洗濯ものを考えた時。
晴れた日の下で清々干したいけれど…
雨だったり、共働きだからという理由で外にばかり干せない方。
あるいは、考え方や生活スタイルを割り切って室内干しという選択をした方。
そんな方々から支持されるランドリー室。
単体で設置する方もあれば、脱衣室と兼ねる方もいますが、
間取りを考えるときに組み込まれる方が増えています。
せっかく新築するなら、洗濯物のストレスが少ない豊かな生活を。
という訳で今回はランドリー室のご紹介。
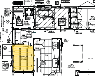
何処へ配置するか?
ランドリー室を設けるとき、用途と配置する位置を検討する方が多いです。
【用途】①単体で設置する②脱衣室と兼ねる。(この時、洗面室は別に設置)
ランドリー室を単体で設置することが出来れば最高ですが、
限られた空間を有効活用するなら、脱衣室と兼ねるという手段もあります。
お客様の目が届かない、プライベートな空間だからと割り切れば、建築費の
削減にもつながるのではないでしょうか?
【位置】①浴室などが集中する北側に配置するか ②建物の南側に配置するか?
浴室や洗濯機が配置されることが多い北側。そこにランドリー室を設けることは
洗濯に関する家事動線がコンパクト且つスムーズになることがメリット。
一方、晴れている日には外干しを希望する方など、屋外とのつながりを重要視するなら
南側への配置もアリ。 下の間取りでは西側の引き戸からも外へアクセス出来ます。
各ご家庭でどの家事動線を優先するか検討することで、位置が変わってきそうですね。

お役立ちアイテム
一方、ランドリー室にあったら便利なアイテムも合わせてご紹介。
サーキュレーター付きの衣類乾燥除湿機。
家の北側にランドリー室を単体で配置したお客様のコメント。
「洗濯機から取り出した衣類が一晩で十分乾いちゃいます。
サーキュレーター付乾燥除湿器の効果、あります。オススメですとのこと。」

また、ガスを併用したお宅ならガス乾燥機というアイデアも。
脱衣室と兼ねたランドリー室を建築頂いたお客様のコメントより。
「外干しと比べても衣類がフワフワの仕上がり。また、乾燥しきるまでの
時間が電気の乾燥機より短くて済むから私たちの生活スタイルに合っています。」

お施主様にとって毎日の暮らしが楽しく、居心地の良いお家になるように。
私たちは、そんな事を考えて間取りを提案させて頂いています。
.png)
















