2024/06/10
家づくりのポイント
「収納がない家」になぜ需要はあるのか?新築に収納スペースはどのくらい必要?

最近の新築住宅の傾向として、「廊下のない家」「窓がない家」に続き「収納がない家」の需要が増えつつあります。
その背景としては、住宅の価格アップから、なるべく建物面積を減らしてコスト削減という目的があります。
巷では「収納はあればあっただけ物が増えていくから、必要最低限あればいい」というような意見がよく見られますが、「いくらなんでも少なすぎるのでは…?」という間取りもチラホラ。ミニマリストにとっては大丈夫かもしれませんが…。

都心部では、そもそも土地自体が狭いので家も小さくする必要があり、そうなってくると必然的に収納スペースを削らざるを得ないのも頷けます。
ですが地方の場合は、土地の広さ自体は十分に確保できるケースが多いため、無理して収納を削る必要性はあまりないように感じます。
コスト削減のために収納を削るという場合もありますが、そこをケチって生活しにくい家を建てるくらいなら、もう少し他に削れる部分があると個人的に思います。

ということで、せっかく家を新築するなら、やはりある程度の収納スペースは必要です!
参考プランを例に、具体的な収納スペースを見ていきましょう。
1階の間取り

玄関クローゼット
家族全員分の靴をしまえるぐらいの収納スペースの確保は必須。小さいお子さんがいるお家なら、ベビーカーやカッパや三輪車とか置けるくらいの広さがあると更にいいですね。

階段下の物入
間取り図では物入になってるので扉付きの収納を想定してますが、間取りの配置によってはキッチンパントリーが階段下に位置するのもありですね。

ファミリークローゼット
家族の衣類をしまっておけるファミリークローゼットは、近年では大多数の方がリクエストされます。普段着るお洋服は洗濯が終わったらすぐに収納できる動線、確かに効率いいですね。

キッチンパントリー
常温で保存OKの食品類や飲料、日用品などをしまっておけるパントリー。これについては意外と小さいスペースでも収まってしまいます。扉色を変えればお部屋のアクセントにもなりますね。

LDKの物入
リビングの収納には書類関係をしまいたいという要望が多いです。スペース的にはそんなに広くなくても少しあれば足りるでしょう。

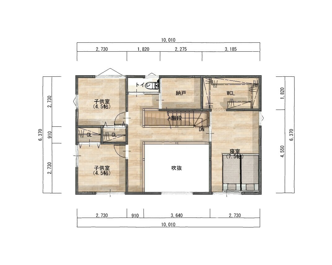
2階の間取り

寝室のウォークインクローゼット
普段着ない衣類は寝室のウォークインクローゼットに収納。ウォークインクローゼットの突き当りに中段を入れればお布団もしまえますね。
広さは概ね3帖くらいが無難でしょう。おしゃれ好きな方は4帖をおすすめします!
広さを確保できない場合は普通のクローゼットにしても◎

子ども部屋のクローゼット
子ども部屋のクローゼットは扉をなくすことで、簡易引出し収納や家具を置けるように、お子さんの成長に合わせて可変性のあるクローゼットをおすすめしています。

納戸
棚を事前に取り付けておくのか、もしくは何も取り付けせず個室としても使えるようにしておくのか、ご家族によって意見がわかれるところ。
こことは別にウォークインクローゼットが広く確保できているのであれば、ただの個室としてケースバイケースで使えるようにしておくと意外と使い勝手がいいようです。

収納がない家は生活しにくい!新築に収納スペースはある程度必要です
ご紹介したような収納スペースを確保できれば結構生活しやすいお家になるのではないでしょうか。
間取りの都合でここまで収納を確保できない場合は、収納を丸ごとなくしてしまうよりも、小さいスペースでもいいから要所要所に収納を確保することが今後の暮らしに役立つと思います。狭くても間取りを工夫すれば意外といけるものです。
新築をご検討の方はぜひ参考にしてみてくださいね。
.png)
















